Planet madhështore të Dua Lipës për t'i shtuar shtëpisë së saj milionëshe pishinë dhe kinema përballen me kundërshtime të ashpra nga fqinjët

Dua Lipa është duke bërë një ndryshim masiv të shtëpisë së saj në vlerë prej 6.75 milionë funtesh në Londër, duke përfshirë inkuadrimin e një pishine në bodrum - e kompletuar me një 'zonë qetësimi'.
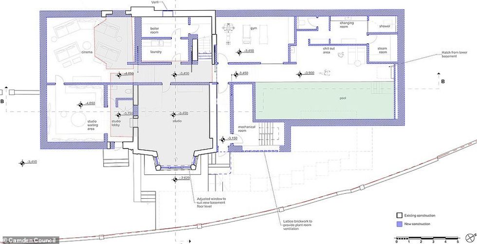
Këngëtarja, 26 vjeçe, ka paraqitur plane për të ndërtuar një pishinë, dhomë me avull, dush, dhomë zhveshjeje dhe zonë relaksi nga njëra anë dhe një kinema, ambient pritjeje në studio dhe holl nga ana tjetër, shkruan DailyMail.
Por Dua gjithashtu dëshiron të prishë një shtesë të pasme dhe të ndërtojë një të re për të krijuar një dhomë familjare me një çati të gjelbër - gjë që planifikuesit në këshillin lokal dhe konservatorët e kanë kundërshtuar.
Si dhe planet për një rinovim të gjerë, këngëtarja dëshiron të copëtojë një panje dekorative dhe një shelg dhe të kryejë riparime në një mur tradicional kufitar.
Sipas propozimeve, shtëpia e Duas me pamje të re do të mburret me një sallë hyrjeje në katin e parë, dhomë ngrënie, dhomë pritjeje, qilar, bibliotekë, dhomë pluhuri dhe dhomë kopshti.
Kati i parë do të kishte një dhomë gjumi master dhe banjë master, dhomë të zhveshjes, suitë me dy dhoma gjumi për mysafirë dhe një tjetër në katin e dytë.
Punimet e jashtme përfshijnë një pirg të ri oxhaku nga vija e çatisë lart, kangjella zëvendësuese prej gize dhe dritare të reja me kornizë druri për të zëvendësuar ato UPVC.
Ajo po planifikon gjithashtu një rinovim kopshti 'në traditën romantike të Arteve dhe Mjeshtërive' me një lëndinë të re, tarracë përpara, oborr të mbjellë, tarracë të fundosur, kopsht ballkoni, tarracë kuzhine, tarracë me diell dhe kafaz.
Do të ketë gjithashtu një shteg të ri me shkallë që lidh kopshtin e përparmë dhe të pasëm, një gardh me shkoza të lyer me murin kufitar për të krijuar një zonë të brendshme të mbrojtur të oborrit dhe porta të reja rrëshqitëse të automatizuara në hyrje.
Dua aplikoi për leje planifikimi për punimet e propozuara sepse prona ndodhet në një zonë të caktuar të konservimit, por një forum lokal i lagjes e ka kundërshtuar aplikimin.
Në një letër drejtuar këshillit, sekretarja Nancy Mayo shkroi: "Forumi vëren se këshilla e marrë para aplikimit është se zgjatimi ekzistues i pasmë nuk duhet të prishet pasi kontribuon pozitivisht në karakterin dhe pamjen e banesës pritëse”.
Muret kufitare të ndërtuara nga tulla llave (të njohura edhe si tulla klinker) janë një tipar shumë i rëndësishëm i Zonës së Konservimit. Muret kufitare me tulla të llavës të veshur me dredhkë janë tipare të dukshme të peizazheve të rrugëve.
Forumi kundërshton prerjen e shelgut dhe rindërtimin, ose ndonjë dëm të mundshëm, për muret kufitare.
Forumi vëren se ky vend është shumë afër përroit kufitar nëntokësor dhe vijës së pranverës dhe se shelgu mund të jetë mbjellë për të adresuar atë që mund të ketë qenë një kopsht i lagur. Prandaj, një pellg natyror i kafshëve të egra do të ishte plotësisht i përshtatshëm në një vend të tillë.
"Meqenëse aplikimi nuk duket të jetë në përputhje me të gjitha politikat përkatëse të Planit të Fqinjësisë, Forumi dëshiron të kundërshtojë aplikimin", thuhej në letër.
Në këshillën e tij para aplikimit, Camden Council shtoi: "Oficerët konsiderojnë se zëvendësimi i shtrirjes së pasme dhe mbushja e prapambetjes anësore ekzistuese, me një shtrirje më të madhe dhe moderne, do të dëmtonte integritetin e ndërtesës dhe kontributin e saj në zonën e ruajtjes”.
"Oficerët do t'i rezistonin me forcë prishjes së shtrirjes ekzistuese të pasme pasi ajo kontribuon pozitivisht në karakterin dhe pamjen e banesës pritëse për shkak të dizajnit të saj të konsideruar me kujdes dhe përdorimit të materialeve".
Në një deklaratë projektimi, agjenti i saj i planifikimit tha: “Sfida e paraqitur nga klienti ynë ishte rritja e sipërfaqes së dyshemesë [të shtëpisë] në mënyrë të ngjashme si pronat e tjera në zonë, duke ruajtur dhe respektuar cilësitë e shtëpisë origjinale dhe prania e tij e konsiderueshme në një cep brenda zonës së ruajtjes”.
Zgjatja e zëvendësimit është për të lejuar lidhje më të mirë nga dhoma e familjes në kopsht dhe është projektuar me kujdes për të parandaluar shfaqjen e çështjeve të privatësisë.
"Është e një madhësie dhe përmasash të ngjashme me atë ekzistuese që po hiqet dhe mbetet në shërbim të shtëpisë ekzistuese. Shtëpia është ngjarja kryesore, nuk ka asnjë qëllim për të konkurruar për vëmendjen e shikuesit me një zgjidhje të zënë ose madhështore”.
Kopshti i ri i poshtëm do të aksesohet nga hapësirat e reja të punës në studio në bodrum për të lejuar që aktiviteti i punës të jetë i ndarë nga pjesa tjetër e shtëpisë. Muri mbajtës i kufirit në anën perëndimore do të ri-faturohet me tulla të kuqe e cila është më e karakterit të zonës së konservimit sesa tulla ekzistuese e verdhë.
"Pronarët kërkojnë jo vetëm të zhvillojnë shtëpinë brenda ligjit, por të përmirësojnë dhe rinovojnë pronën, me ndërhyrje të ndjeshme të projektimit që janë në përputhje me zonën, për të përmirësuar performancën e saj mjedisore dhe për të siguruar mirëqenien e shtëpisë në të ardhmen".
Sipas faqes së internetit të pronave Rightmove, Dua pagoi 6.75 milionë funte për bllokun janarin e kaluar dhe zyrtarët e këshillit do të marrin një vendim për planet në Vitin e Ri.
Deri më tani nuk ka pasur kundërshtime nga fqinjët dhe banorët e tjerë të famshëm që jetojnë aty pranë, përfshirë këngëtarët e tjerë: Sam Smith dhe Boy George, prezantuesja televizive Melanie Sykes, komediani Jimmy Carr dhe aktorët Rowan Atkinson dhe Richard Wilson. /Telegrafi/









































































