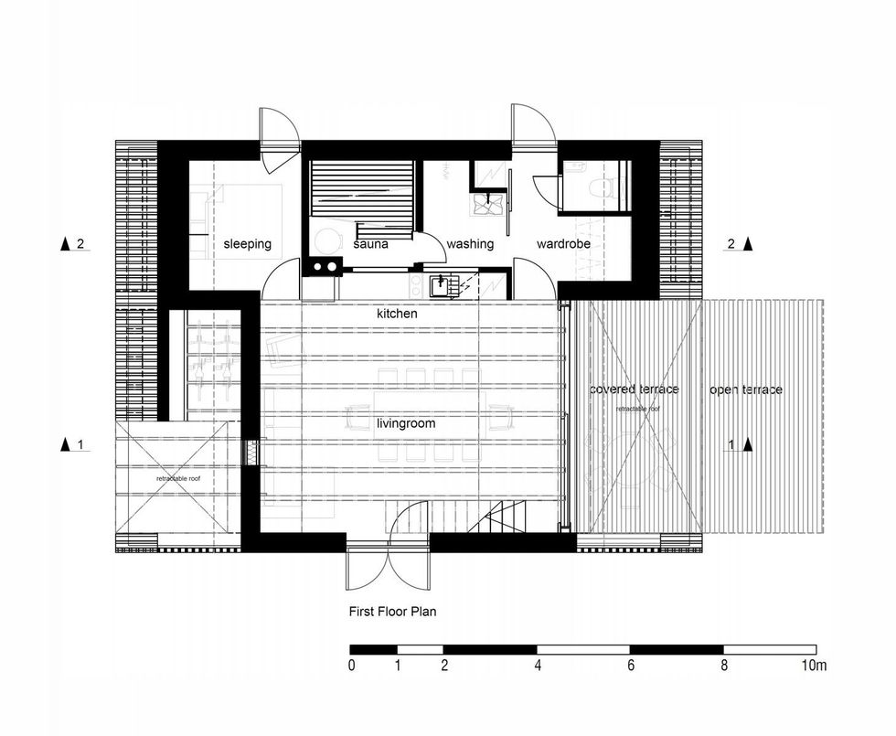
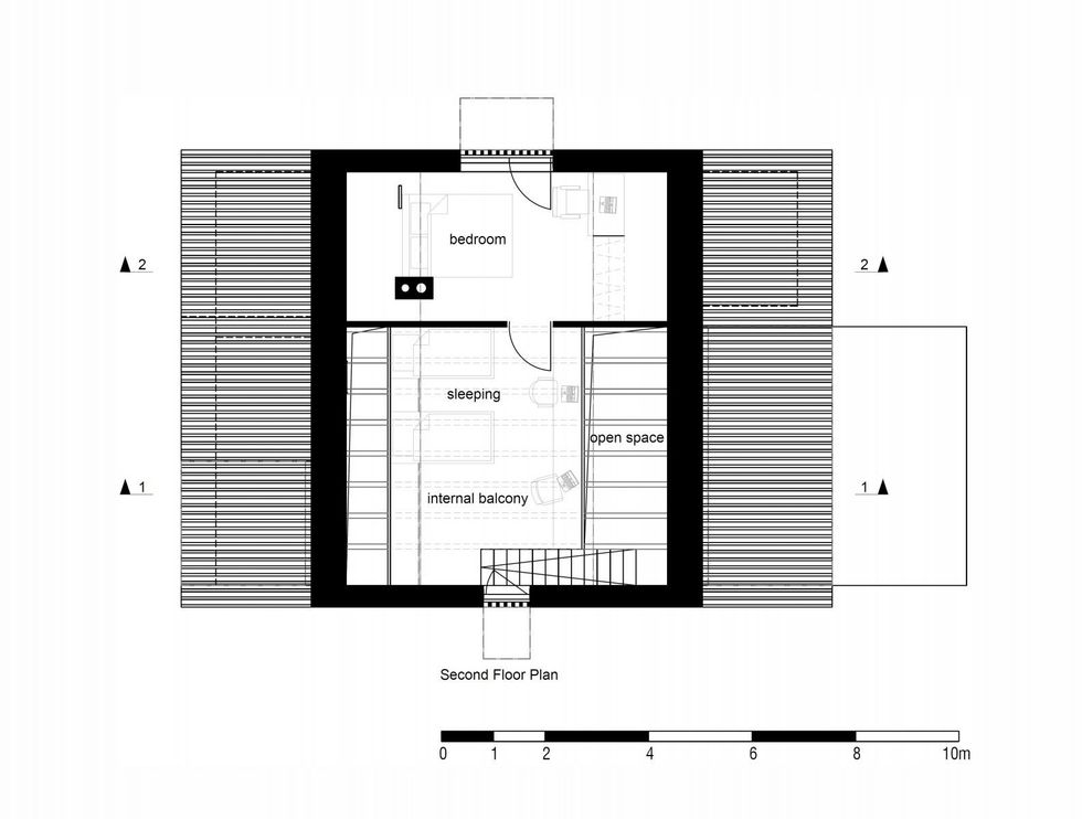
Shtëpia e mrekullueshme prej druri në pyll që transformohet dhe përshtatet (Plani detaj)

Shtëpia prej druri me fasadë nga drurë të djegur me formën A minimale na rikujton tendën
E projektuar në atë mënyrë që hapet si guacë, kur është në përdorim, siguron më shumë komfor, mirëpo kur në të nuk banon askush, mbyllet dhe shkrihet me natyrën që e rrethon.
Byroja e Estonisë Eek & Mutso ka projektuar një shtëpizë vikendi Kuku-Ranna Summer House, në afërsi të Talinit, në formën A me çati të pjerrët, mu siç kanë qenë edhe shtëpizat e ndërtuara në vitet ’70 të shekullit të kaluar në këtë zonë.
Në bazën e tyre moderne janë shtuar elemente të lëvizshme që i japin shtëpisë mundësinë e transformimit dhe përshtatjes, transmeton Telegrafi.
Fasada e drunjtë është me përpunim final yakisugi, një teknikë tradicionale e djegies së drurëve. Tekstura e djegur dhe e larë përshtatet në mënyrë të përkryer me pyllin me pisha përreth. Kapakët e drunjtë të lëvizshëm me konstruksion çeliku ngrihen si krahë duke zbuluar murin e madh të qelqtë në fasadën kryesore e cila çon në dhomën e ndenjës.
Grila e hapur bëhet kështu një çati mbi tarracën përballë dhomës së ndenjes, ndërsa muri i xhamit nën blind hapet dhe lidh tarracën dhe brendësinë e shtëpisë në një tërësi unike.
Një grilë në anën tjetër të shtëpisë zbulon një punishte të vogël e cila është shndërruar në mënyrë të ngjashme në një hapësirë të gjerë të hapur me çati.
Shtëpia qëndron mbi një pllakë betoni, ndërsa e gjithë struktura është prej druri. Gjithashtu, përfundimi i jashtëm dhe i brendshëm është prej druri, ndërsa konstruksioni i kapakut është prej çeliku.
Pas kësaj pamjeje disi të ashpër dhe të reduktuar, fshihet një brendshme me tone të buta, me shumë detaje personale, të ricikluara.
Ashtu siç pritej, një sauna tradicionale gjeti vendin e saj në shtëpi dhe shumë detaje të tjera me referenca për natyrën përreth dhe traditën lokale, duke lënë hapësirë të mjaftueshme për dizajn modern dhe vepra arti nga miqtë.





























































