Shtëpizë pushimi moderne

Shtëpiza atraktive e rrethuar me male të parkut rajonal Poisson Blanc në Kanada, është shembull perfekt se si ndryshimet e vogla në dizajn mund të transformojnë shtëpinë klasike me kulm të pjerrët në objekt modern dhe atraktiv
E vendosur 120 kilometra në veri të Otavës, mikro-shtëpiza nga dërrasat "La Pointe", është e qasshme për vizitorët e parkut kanadez, të cilët mund ta marrin me qira për një periudhë të shkurtër kohore dhe të kënaqen në natyrë, transmeton Telegrafi.
Kulmi i pjerrët i mbuluar me panele metalike është zgjidhje standarde në atë rajon klimatik. Pjesa e jashtme është e mbështjellë me dru cedri, që do të marrë ngjyrë argjendi me kalimin e kohës.
Hapësira e brendshme jetësore është zvogëluar në vetëm përgjysmë në krahasim me shtëpinë tradicionale, ndërkaq pjesa tjetër është shfrytëzuar për hapësirën funksionale të jashtme – në tarracë të madhe të mbuluar, e cila mund të shfrytëzohet gjatë pjesës më të madhe të vitit.
Dritaret masive dhe brendësia të mbështjella me dru qiparisi edhe më shumë e ftojnë natyrën brenda dhe krijojnë ambient të shenjtë dhe të këndshëm për momente relaksimi dhe ikje nga përditshmëria e zhurmshme urbane.
Me enterierin dominon kombinimi i drurit dhe i ngjyrës së zezë, e cila i ofron shtëpizës njëherësh edhe dukje moderne edhe rurale.
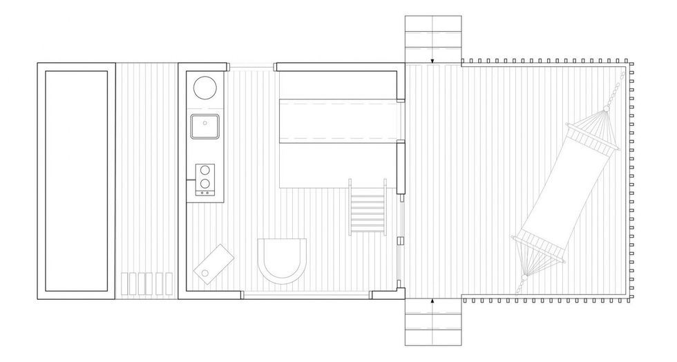
Hapësira e brendshme është e hapur dhe e përbëjnë shumë zona të lidhura funksionale. Në përdhese janë të vendosura kuzhina e çajit dhe trapezaria të cilat njëherësh funksionojnë si dhomë e qëndrimit ditor dhe dhomë shtesë gjumi.
Përdhesja (kuzhina dhe trapezaria) + tarraca
Shtëpiza është e pajisur me mobilie, të cilat janë ndërtuar sipas masës, andaj edhe tavolina e trapezarisë është dizajnuar në atë mënyrë që të mund të ulet dhe të shtrohen dyshekë, duke ofruar kështu hapësirë shtesë për gjumë.
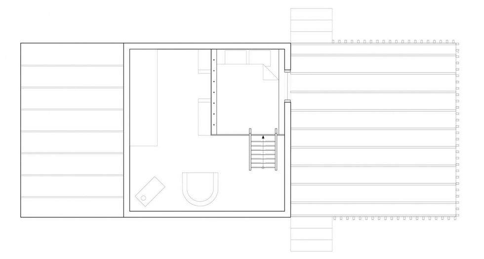
Dhoma kryesore e gjumit në galeri




























































