Shtëpi modulare njëkatëshe me një tarracë të madhe, e cila mund të zgjerohet nëse është e nevojshme

Një shtëpi njëkatëshe me një tarracë të madhe dhe një hapësirë parkimi të mbuluar u krijua duke kombinuar module të zgjedhura në një formë që u përshtatet banuesve të saj
Kur nevojat e tyre ndryshojnë, ajo mund të zgjerohet dhe përshtatet me kërkesat e reja.
Kjo shtëpi është bërë nga module të gatshme, të cilat janë të lehta për t'u montuar dhe përshtatur me kërkesat individuale.
Është e nevojshme vetëm të zgjidhni konfigurimin e shtëpisë modulare, dekorimin e saj të jashtëm dhe të brendshëm.
Ky sistem universal u përshtatet nevojave të ndryshme funksionale të banuesve të ardhshëm, madhësive dhe konfigurimeve të parcelave, transmeton Telegrafi.
Shtëpi modulare njëkatëshe me një tarracë të madhe dhe një vend parkimi të mbuluar
Në kuadër të këtij projekti, arkitektët projektuan një numër modulesh një dhe dykatëshe që ndryshojnë në formë dhe sipërfaqe.
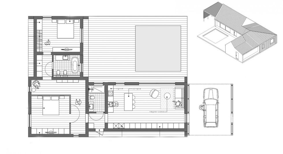
Shtëpitë e konfigurimeve të ndryshme mund të kombinohen nga modulet - lineare, në formë C ose në formë L, si shtëpia njëkatëshe që ju prezantojmë.
Nga kombinimi i moduleve në formë L u përftua një shtëpi prej 112 m2 me një tarracë të madhe, si dhe një vend parkimi i mbuluar shtesë. Përveç hyrjes kryesore dhe lidhjes me tarracën, ka edhe qasje direkte në parking.
Hyrja kryesore e shtëpisë është e fshehur nën një tendë me rrasa druri, dhe në këtë hapësirë të mbrojtur mund të lini edhe një biçikletë ose mobile kopshti.
E gjithë pjesa e jashtme është e përfunduar me panele fasade dhe çati, ngjyra, forma dhe materiali i të cilave mund të zgjidhet.
Avantazhi më i madh është mundësia për të zgjeruar dhe përshtatur shtëpinë me nevojat e reja nëse është e nevojshme
Duke marrë parasysh konceptin modular, përparësia më e madhe e kësaj lloj shtëpie është se ajo mund të ndryshohet lehtësisht me kalimin e kohës dhe sipas nevojës. Duke shtuar module të reja, ajo mund të zgjerohet në të njëjtin nivel, ose edhe me dysheme të re, mund të ndryshojë formën dhe pamjen e jashtme.
Studio ka projektuar një fasadë të dyfishtë, e destinuar për anën e shtëpisë që përballet me trafikun ose një burim tjetër zhurme, e cila shërben si një izolim i rëndësishëm i zërit, ndërsa brenda hapësirës boshe midis paneleve mund të përdoret si hapësirë shtesë ruajtëse.
Përballë kësaj fasade, e cila luan rolin e një pengese vizuale dhe zanore midis shtëpisë dhe ambientit të jashtëm, fasada e kundërt e modulit është e hapur ndaj vendndodhjes.
Brendësia është gjithashtu modulare dhe e adaptueshme, është e mundur të zgjidhni dhe përshtatni elemente, ngjyra dhe materiale.
Brendësia e shtëpisë është e orientuar drejt hapësirës së jashtme dhe tarracës, e cila lidhet me të me dyer rrëshqitëse xhami.
Enterieri modern me detaje karakteristike dhe mbulesa muri, përshtatet në mënyrë të përkryer me konceptin e një shtëpie të adaptueshme.
PLANI






























































