Arkitekturë funksionale dhe imagjinative që respekton natyrën përreth

Arkitektura e pazakontë ka vënë në plan të parë kreativitetin dhe imagjinatën e stilistëve, por kjo nuk do të thotë se ka hequr dorë nga funksionaliteti i saj...
Në fund të fundit, është gjithmonë qëllimi përfundimtar i çdo projekti arkitekturor - të ushqejë imagjinatën tonë, por edhe të sigurojë hapësirën e duhur për relaksim dhe shoqërizim, transmeton Telegrafi.
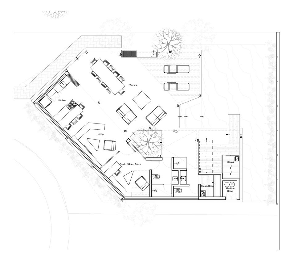
Një projekt i tillë është edhe kjo shtëpi origjinale, e cila, nga njëra anë, është projektuar për t'iu përshtatur plotësisht mënyrave të jetesës së një familjeje, por edhe për të ofruar një program social lozonjar në formën e një pishine, saune, hapësire për të përdorur një skarë, por edhe për një zyrë.
Pika e nisjes së projektimit vjen nga respektimi i pemëve ekzistuese në zonë, e ndjekur nga pozicioni i pishinës, i cili synon të krijojë një hapësirë sociale intime në pjesën e pasme të pronës.
Pas kësaj, në radhë vjen tarraca e ngritur, e cila krijon pamjen e një strukture lundruese, ndërsa shtyllat skulpturore imitojnë dhe inkuadrojnë konturet e pemëve përreth. Së fundi, niveli i sipërm i ndërtesës merr funksionin e një lloj platforme vëzhgimi, duke ofruar një pamje fantastike të pemëve përreth të rezervatit natyror.
Përdorimi mbizotërues i tullave prej balte të papërpunuar dhe paraqitjeve të tyre të ndryshme buron nga synimi për të ripërvetësuar dhe riinterpretuar një nga materialet më tradicionale të ndërtimit në këtë pjesë të Bolivisë.



































































