Një vilë moderne që ofron paqe dhe privatësi: Kur natyra hyn në shtëpi

Impresionuese në çdo kuptim, shtëpia familjare, është interesante nga shumë aspekte
Në shikim të parë, ajo lë një përshtypje me një koncept të fuqishëm të arkitekturës bashkëkohore, si dhe me përmbajtjen shoqëruese të jashtme të krijuar për t'iu përshtatur kuptimit modern të hedonizmit.
Autorët e studios kanë realizuar me sukses idenë bazë të investitorëve - të krijojnë një vilë urbane që ofron paqe dhe privatësi.
Duke qenë se forma G është aplikuar në konceptin arkitektonik, dy anët e fasadës janë të hapura ndaj parcelave anësore, të cilat ofrojnë privatësi, transmeton Telegrafi.
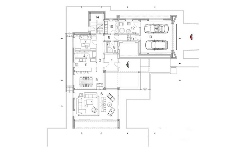
Dy anët e tjera të shtëpisë janë të “mbyllura” ndaj fqinjëve, për t’u mbrojtur nga pamja. Në total, objekti ka 350 metra katrorë. Ndarja është standarde. Kati i parë është rezervuar për zonën e hapur ditore të bollshme që është shtylla kurrizore e jetës familjare. Një pjesë e veçantë e hapësirës është e ndarë për dhoma shërbimi me praktike.
Kati i dytë është i shtrirë në 100 metra katrorë dhe përbëhet pothuajse tërësisht nga dhoma gjumi. Shtëpia hapet drejt oborrit të brendshëm dhe pishinës. Arkitektët donin që dhomat e gjumit dhe dhoma e ndenjës të hapeshin drejt dy pemëve të holla që “shfaqin” në mënyrë shumë efektive dhe një nga motivet dominuese në rregullimin e brendshëm.
Panele të mëdha xhami si në katin e parë, ashtu edhe në katin e dytë me hapësirë më të vogël që vazhdon deri në tarracë të madhe, si një mënyrë e zakonshme dhe e mirë e arkitekturës moderne rezidenciale minimizon vizualisht kufirin midis pjesës së jashtme dhe të brendshme. Gjithçka shkrihet në një tërësi të vetme që shoqërohet me elegancë dhe rehati të sofistikuar.
Të gjitha format e enterierit dominohen nga format moderne të mobilieve. Në skenë ka tone të lehta druri, ndriçim që i jep çdo tërësie një "vulë përfundimtare" të famshme dhe shumë dritë. Dinamika krijohet nga një ndryshim elegant i mermerit ngjyrë bezhë dhe të bardhë, me shkëlqim që mbulon dyshemetë dhe detajet prej druri në tavane. Në dhomën e ndenjes, si element i tretë, shfaqet një gur i cili mbulon disa mure. Natyra ka depërtuar thellë në hapësirën e brendshme dhe e ka ringjallur atë në një mënyrë unike.
Prandaj, ka ekzemplarë të bimëve në mjedis - në zonën e banimit mbi të gjitha! Por, ndërsa niveli i sipërm, përmes galerisë me theks xhami, hapet në katin përdhes, përshkimet stilistike fitojnë forcë dhe kompaktësi. Për shembull, shkalla që çon nga kati përdhese në katin e parë ka murin e vet të banimit të bërë nga bimët e përzgjedhura.
Ambientet e jashtme janë të pajisura për çdo rast dhe humor. Nga shezllonet tek tavolinat për t'u ulur dhe për të ngrënë.
Në shtëpi si kjo, njeriu me të vërtetë ka ndjenjën e të jetuarit në botën e tij të krijuar në përputhje me vizionin e tij personal për kënaqësinë e jetës.



























































