Vila njëkatëshe: Plani i hollësishëm i shtëpisë e cila frymon elegancë dhe arkitekturë bashkëkohore

Shtëpia ka 207 metra katrorë në nivel të rrafshët me pjesën e shtuar në nënkulm e cila mund të adaptohet në hapësirë të dobishme
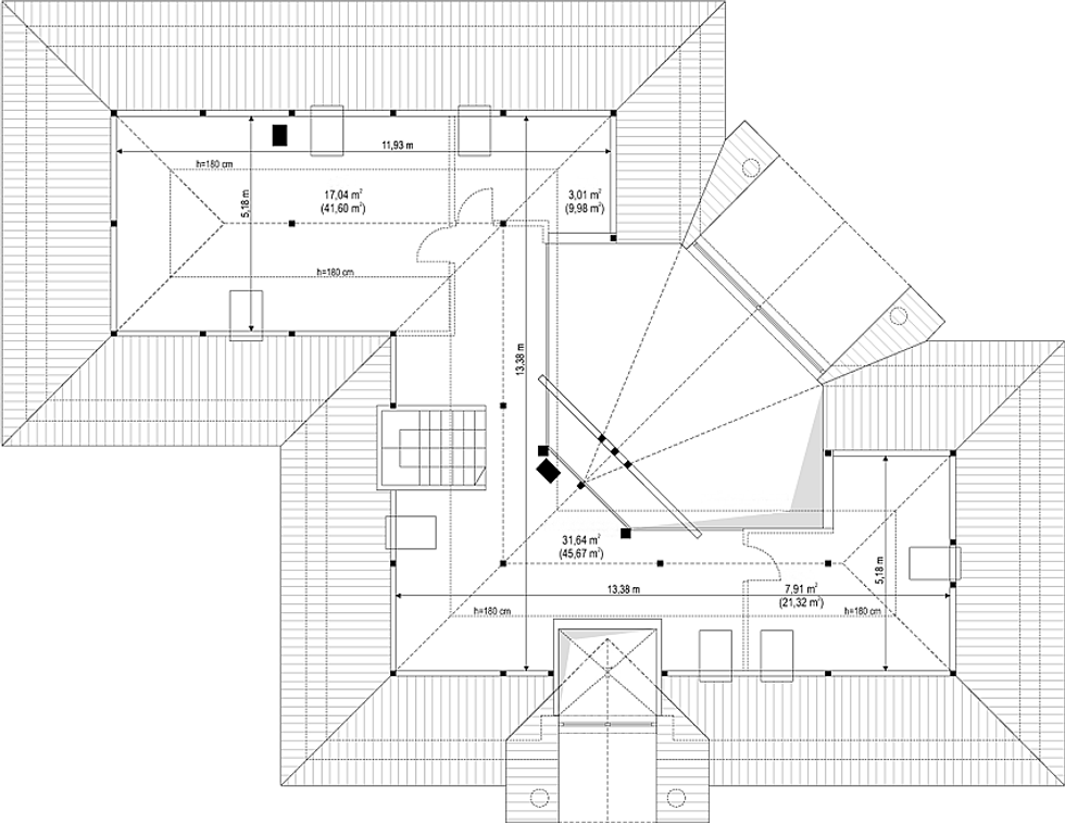
Është projektuar në formën e germës L, me garazh dhe hapësirë ndihmëse të vendosura bashkë me shtëpinë, transmeton Telegrafi.
Garazhi është i vendosur në atë mënyrë që të mos pengojë qasjen në hyrjen kryesore të shtëpisë.
Nga ana e pasme shtëpisë gjendet hapësira intime për relaksim dhe miq.
Dera mbresëlënëse e qelqtë dhe dritaret në formë gjysmë harku lidhin kopshtin me hapësirën e qëndrimit ditor dhe i japin shtëpisë bukuri të veçantë.
Pjesa qendrore e shtëpisë përfshin hapësirën e madhe të qëndrimit ditor me trapezari. Është kjo hapësirë e hapur me lartësi të dyfishtë të cilën nga korridori pjesërisht e ndan muri me kaminin e ndërtuar.
Kuzhina moderne me stil amerikan posedon ishullin për shumë destinime dhe është e ndarë nga dhoma e ditës.
Zona private është qartë e ndarë dhe e veçuar në skajet e kundërta të shtëpisë: në njërin skaj janë vendosur dy dhoma gjumi për fëmijë dhe banja e përbashkët, derisa në skajin tjetër gjendet dhoma kryesore e gjumit me bashkë me banjën dhe gardërobën, si edhe dhoma e punës.
Në një pjesë e katit gjendet paradhoma e cila është e kthyer në drejtim të dhomës së ditës.
Nënkulmi lehtë mund të adaptohet në tri dhoma gjumi apo në hapësirë për vendosje të gjërave, mirëpo, megjithatë i gjithë tavani mund të përdoret për rekreacion.
Sipërfaqja e shfrytëzueshme: 207,29 m²
Gjatësia minimale e truallit: 26,12 m
Gjerësia minimale e truallit: 31,47 m
Lartësia e shtëpisë: 6,35 m
Vëllimi i shtëpisë:1304 m³
Pjerrësia e kulmit: 30°
Dhoma gjumi: 4






























































